4 o più locali in vendita a Laives

In vendita
Laives (Pineta) - Via Brennero
455.000 €
4 o più locali
Categoria
130
m2
5
Locali
4
Camere
2
Bagni
1
Box
Descrizione
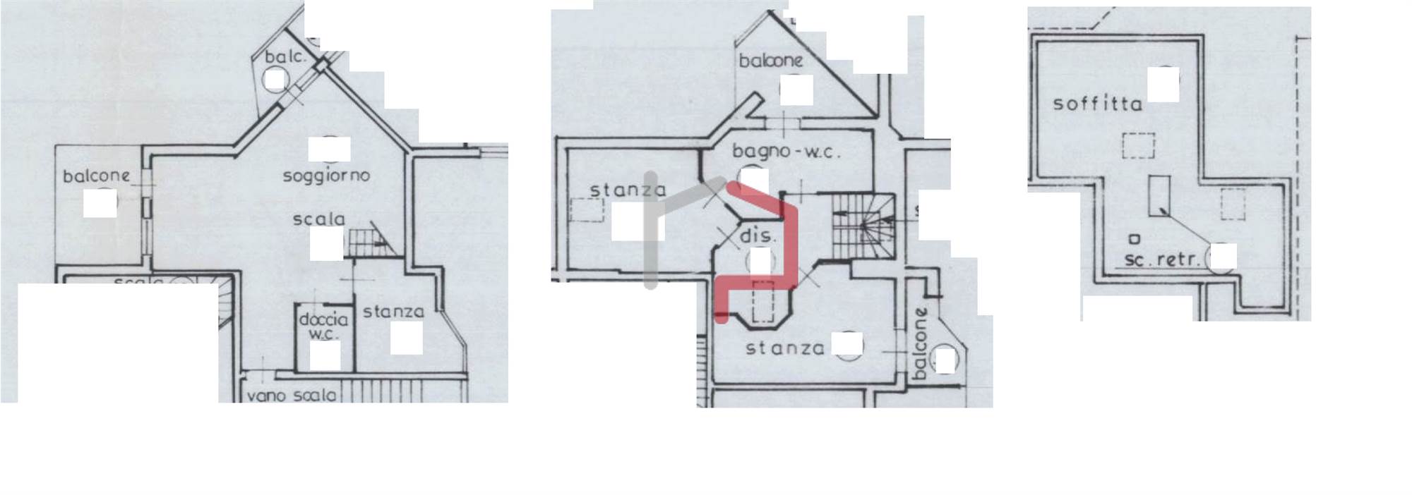
PINETA: proponiamo in esclusiva di vendita AMPIO APPARTAMENTO DI 130 MQ! L'immobile si dispone su più livelli e si compone di ingresso, soggiorno, cucina abitabile, quattro camere da letto, doppi servizi finestrati, ripostiglio, QUATTRO BALCONI, DUE TERRAZZE e cantina. Extra acquisto garage doppio. OTTIMA ESPOSIZIONE SOLEGGIATA SUD/OVEST/EST! Classe Energetica G.

Questo immobile è proposto in vendita dalla REALPRO, un'agenzia immobiliare che opera nel settore con grande serietà e trasparenza. I nostri punti di forza sono la disponibilità e l'attenzione che rivolgiamo al cliente. Chi compra, chi vende, chi desidera investire può affidarsi a noi con la certezza che rimarrà soddisfatto. REALPRO inoltre investe nell' advertising in maniera mirata e con successo fa conoscere le proprietà ad un vasto numero di possibili acquirenti.
La valutazione degli immobili avviene in maniera gratuita in modo che il cliente possa ponderare con la massima serenità come e quando vendere.
Impegno della REALPRO è quello di non abbandonare il cliente a contratto concluso, bensì di accompagnarlo attraverso il percorso di vendita fino all’atto notarile.

"Non cercare, trova" (Pablo Picasso) ….. e noi troviamo quello che cerchi!
Caratteristiche principali
Codice:
V004027
Città:
Laives (Pineta)
Categoria:
4 o più locali
Spese condominiali:
1.500 € / anno
Locali:
5
Camere:
4
Bagni:
2
Mq:
130
Box:
1
Balconi:
4
Terrazzi:
2
Piano:
2
Classe energetica:
G
Stato Immobile:
Ottimo
Grado:
Signorile
Panorama:
Vista Aperta
Orientamento:
Nord Ovest Sud Est
Lati Liberi:
4
Arredi:
Semi Arredato
Tipo Soggiorno:
Soggiorno
Tipo Cucina:
Abitabile
Riscaldamento:
Autonomo
Tipo Impianto:
Radiatori
Fonte Energetica:
Gasolio
Acqua Calda:
Autonoma
Infissi:
Legno Doppio Vetro
Pavim. Giorno:
Gres Porcellanato
Pavim. Notte:
Parquet
Accesso interno disabili:
Non accessibile
Accessori
Aria Condizionata
Ascensore
Doppi Vetri
Mappa
Richiedi informazioni
Invia
Qr Code
Cookie preference