3 locali in vendita a Bolzano

In vendita
Bolzano (Firmian) - via Puccini
455.000 €
3 locali
Categoria
100
m2
3
Locali
2
Camere
1
Bagni
1
Box
1
Posti auto
Descrizione
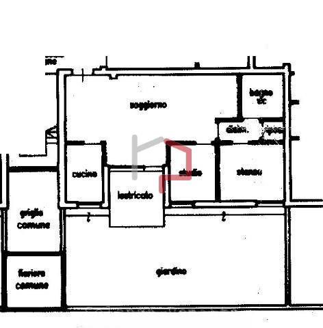
VIALE GIACOMO PUCCINI: proponiamo in esclusiva di vendita BELLISSIMO E AMPIO TRILOCALE di 100 MQ, CASA CLIMA C! L'immobile si compone di ingresso, ampio soggiorno, cucina abitabile, due stanze da letto, un bagno, ripostiglio e GIARDINO PRIVATO DI 100 mq. Completano l'immobile posto auto condominiale e cantina. Extra acquisto garage 18 mq. OTTIMA POSIZIONE INTERNA! ESPOSIZIONE NORD/OVEST.

Questo immobile è proposto in vendita dalla REALPRO, un'agenzia immobiliare che opera nel settore con grande serietà e trasparenza. I nostri punti di forza sono la disponibilità e l'attenzione che rivolgiamo al cliente. Chi compra, chi vende, chi desidera investire può affidarsi a noi con la certezza che rimarrà soddisfatto. REALPRO inoltre investe nell' advertising in maniera mirata e con successo fa conoscere le proprietà ad un vasto numero di possibili acquirenti.
La valutazione degli immobili avviene in maniera gratuita in modo che il cliente possa ponderare con la massima serenità come e quando vendere.
Impegno della REALPRO è quello di non abbandonare il cliente a contratto concluso, bensì di accompagnarlo attraverso il percorso di vendita fino all’atto notarile.

"Non cercare, trova" (Pablo Picasso) ….. e noi troviamo quello che cerchi!
Caratteristiche principali
Codice:
V004091
Città:
Bolzano (Firmian)
Categoria:
3 locali
Spese condominiali:
1.800 € / anno
Locali:
3
Camere:
2
Bagni:
1
Mq:
100
Box:
1
Posti auto:
1
Piano:
Terra
Anno:
2007
Classe energetica:
C
Stato Immobile:
Ottimo
Grado:
Signorile
Panorama:
Vista Aperta
Orientamento:
Nord Ovest
Lati Liberi:
1
Giardino:
Privato
Arredi:
Arredato
Tipo Soggiorno:
Soggiorno
Tipo Cucina:
Abitabile
Riscaldamento:
Centralizzato
Tipo Impianto:
Radiatori
Fonte Energetica:
Metano
Acqua Calda:
Centralizzata
Infissi:
Legno Doppio Vetro
Pavim. Giorno:
Parquet
Pavim. Notte:
Parquet
Accessori
Doppi Vetri
Porta Blindata
Tapparelle Elettriche
Mappa
Planimetrie
Richiedi informazioni
Invia
Qr Code
Cookie preference